Casa de metal
Tegucigalpa 2017
57m2 de construcción
proyecto ganador 1ra Bienal de Arquitectura Honduras en categoría Hábitat urbano
¿Porqué?
A menudo las restricciones nos llevan a soluciones creativas y este proyecto no es la excepción. En primer lugar teníamos que diseñar una casa que contara con dos dormitorios y que todas sus áreas pudieran crecer a futuro. Lo segundo fue un presupuesto ajustado para el proyecto que se vió mas comprometido al tener un terreno que necesitaba un corte de 60m3 de suelo rocoso.
Estas limitantes se discutieron con el cliente y logramos la apertura que necesitábamos para hacer una propuesta fuera del concepto usual de vivienda con el objetivo de poder lograr el proyecto completo. El resultado fue una casa con estructura metálica, forros de tabla yeso internos y aislantes térmicos dentro de las paredes los cuales han sido muy eficientes y su temperatura interna es muy estable. Por supuesto que la pared colindante con el vecino derecho es de bloque con acabado pulido

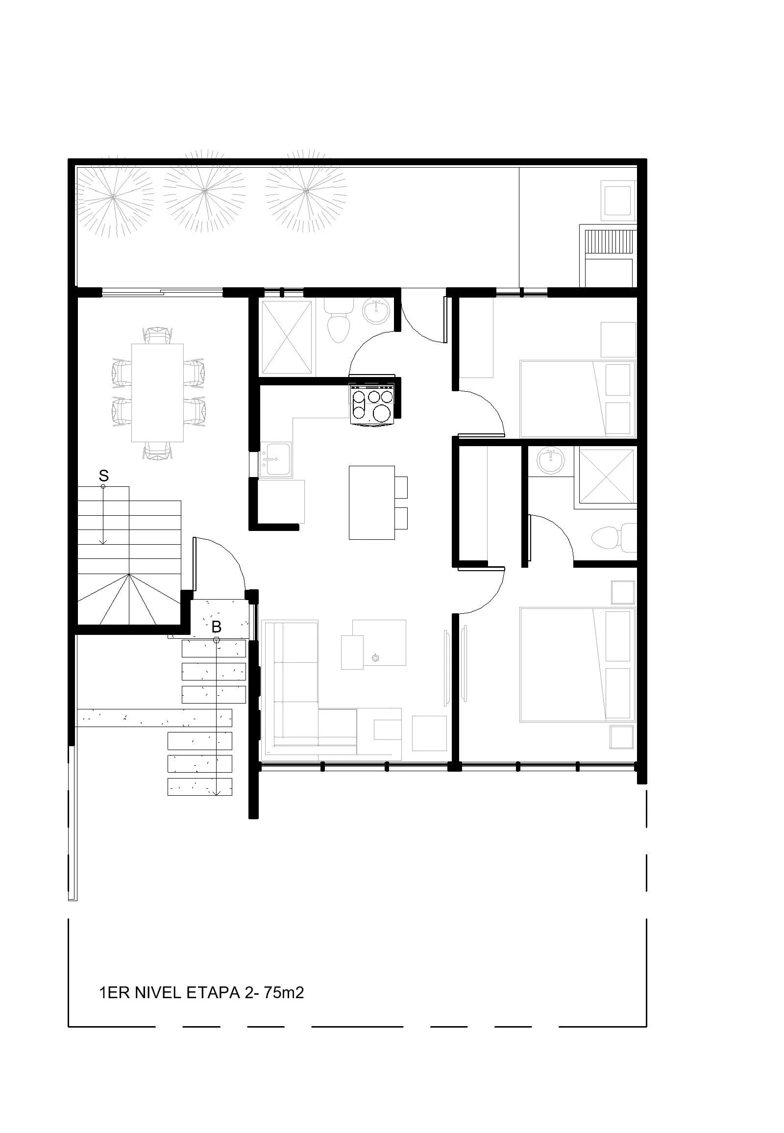
Etapas
La primera etapa del proyecto consiste en una unidad básica de 2 dormitorios, 2 baños completos y sala, comedor, cocina en un mismo espacio
En la segunda etapa la casa crece en un 2do nivel con un dormitorio principal y un área de sala familiar o de estudio. la estructura para éste quedó prevista en la primera etapa.
La transformación del primer nivel es la más importante ya que permite mantener dos dormitorios secundarios y agregar un área más que puede albergar la sala o el comedor, de esta manera la cocina crece en tamaño y funcionalidad con una isla desayunador.
el resultado final es una casa completa con áreas cómodas y bien definidas
Interior
Los interiores de la casa se viven con normalidad, se logró el objetivo de los clientes de poder tener un ambiente cálido y acabados planos en el interior
El proyecto fue ejecutado en 2017 y casi 5 años después el sistema constructivo se mantiene en muy buen estado. El mantenimiento necesario no ha sido diferente al de una casa de construcción más tradicional


Contacto
Si te gustó el proyecto, da click en el botón para ver las formas de comunicación y programar una cita